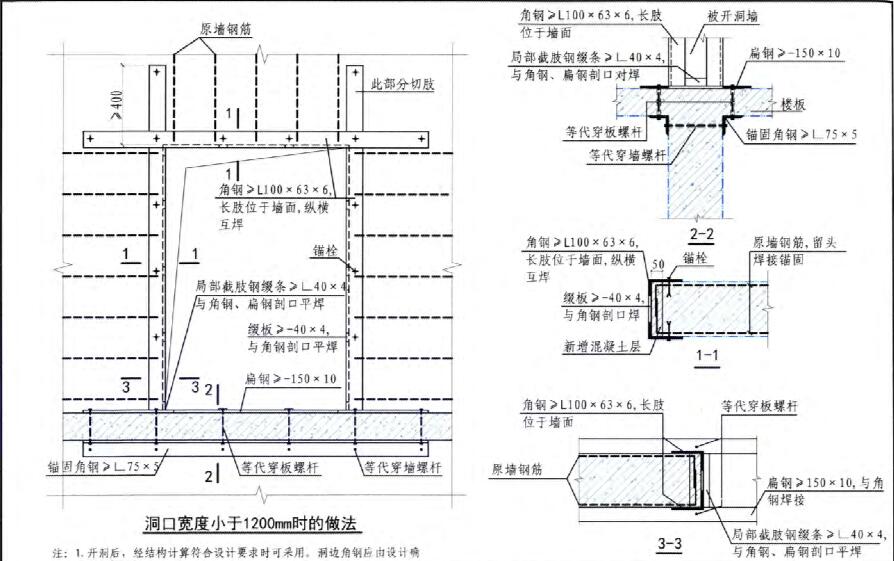
墻體洞口加固法介紹

1. 開洞部位原受力鋼筋 互焊錨團后澆筑50厚混凝土。
2 扁鋼》-(8 0 ~ 1 20) x (3 ~ 4) 。
3. 角鋼 # Ll O Ox63x7 , 縱橫互焊 。
4 綴板》 -40 × 4@200 - 300,與角鋼 等強度焊接。
5. 錨栓》 M8@ 300 .
6. 角鋼 、 綴板與原結構間 的縫隙應 灌注膠粘劑.
圖一
I. 開洞后,經(jīng)結構計算符合設計要求時可采用 。 洞邊角鋼應由設計確 定,且不小于 L lOOx6 3 × 60
2.等代穿墻、板螺桿〉 φ16@400 - 600 。
3.穿孔部位應采用膠粘劑灌 注錨固.
4.角鋼、綴板 、 扁鋼等鋼構件與原結構間的縫隙應灌注膠粘劑。